Обяви 0 За нас Контакти
Продава ПАРЦЕЛ
област Варна, с. Слънчево
60 000 €
117 349.80 лв.

(6 €, 11.73 лв./m2)
Цената е с включено ДДС
История на цената
Коригирана в 6:12 на 30 май, 2025 год.
Обявата е посетена 323 пъти.
Площ:
9800 m2

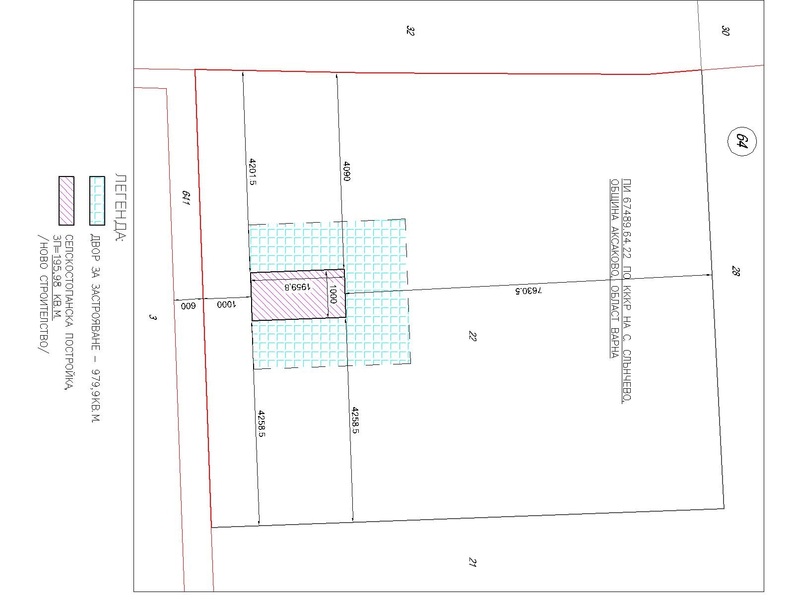
Описание на имота:


Предлагам за продажба изключително атрактивен
имот равен, с правилна форма. Подходящ за строителство на
стопанска постройка/ хале с помещения за живеене (всички
документи са уредени). Постройката може да бъде на две нива.
Площта на имота е 9790 кв. м. Подходящ за инвестиция. Към
момента в имота може да се изгради двуетажна сграда със ЗП 195
кв. м. В близост до имота има ток и вода (може и сондаж). Лесно
достъпна и добра локация, намира се до главен път. Предлагам
пълно съдействие за изготвяне и придвижване на необходимата
проектна документация до реализиране на строежа. Моля да се
обаждат само заинтересовани страни.
Особености
За пром.строителство
За контакт:
0887005950
Агенция:
ДИЙЛ
0876076546
В imot.bg от 2024 г.
deal.imot.bg
Адрес:
област Шумен, гр. Шумен, Цар Иван Александър 70
ИЗПРАТИ ЗАПИТВАНЕ
ИЗПРАТИ ЗАПИТВАНЕТО

Продава ПАРЦЕЛ
област Варна, с. Слънчево
Обява: 1r171740058926593

60 000 €
117 349.80 лв.
История на цената
(6 €, 11.73 лв./m2)

Цената е с включено ДДС
ЗАПАЗИ ОБЯВАТА

Местоположение: област Варна, с. Слънчево